Customer Service Hotline: (86)0510-83789998  
| Add to Favorites | Webmail
HOME COMPANY NEWS PRODUCT DEVICE HONOR MESSAGE CONTACT CHINESE
Current Position:Home > Product > GEGS STAINLESS STEEL MILLING DRUM
 
 
GEGS
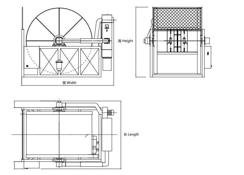
GEGS STAINLESS STEEL MILLING DRUM
MAIN CHARACTERISTICS

The stainless steel milling drum,developed by our company with the advanced technology of programmed pneumatic control,has such a series of functions like automatically intermittent positive and reverse rotation,automatic control of heat,temperature and humidity,automatic running,shutdown, delay start , automatic circulation de-dusting and dehumidification,etc.It is the indispensable equipment for producing high-grade soft leathers.

STRUCTURE AND CHARACTERISTICS

The machine is composed of the stainless steel inner drum,temperature-retention casing,chassis,driving parts and water-electricity-gas integrated auto-control unit.

1、The main drive system consists of magnetic plane brake motor and excellent quality gear reducer with hard-pitch surface.The drum body is to be turned in positive and reverse direction by linking with special union belt.

 


2、It is a closed circulating system with such a flow:inner drum-pipeline-fan-dust collector-pipeline-inner drum.The dust engendered due to electrostatic during the leather milling process can be sucked into the dust-collecting box continuously.
3、The interior humidity can be set according to different kinds of leather.Having undergone the flow of spraying humidity control and dehumidifying-intermittent spraying,the leather will not only reduce caking,shrinking,curling and hardening so as to minimize the local difference but also improve the fullness,tenderness,ductility and appearance as well as visibility of texture.Meanwhile,the area that has been shrunk through the drying process might be recovered.


4、For the temperature control system:can be set according to different kinds of leather.After the process of automatic elevation of temperature--air-change for temperature control—temperature reduction through cooling,it is good for overcoming the negative effect of the temperature at different seasons or surroundings.
5、For the electrical system: All the technical parameters are tangible by hand at the man-machine interface and convenient for modification and adjustment so that the working condition and the variation of temperature, humidity, time and the related data can be seen at the interface.And it has multiple safety protection and alarming functions.
 

 


Model & Size GEGS-250×120 GEGS-270×180 GEGS-300×210 GEGS-350×230
Diameter mm 2500 2700 3000 3500
Width mm 1200 1800 2100 2300
Volume 4.55 8.43 12.44 18.95
Loading capacity kg 180 340 500 760
Drum speed rpm 15-22 15-22 15-20 15-18
Motor power kw 7.5 11 11 15
Heating power kw 9 9 9 9
Fan power kw 3 3 3 3
Door size mm 500×600
vertical
900×750
horizontal
1000×800
horizontal
1200×800
horizontal
Humidity control range mm 2200 2800 3090 3220
Outline dimension(Width) mm 3950 4150 4430 4840
Outline dimension(Height) mm 2700 2900 3200 3880
Total weight t 2.5 3.5 4.5 5.5
Previous:GZGC2-B SUSPENSION STAINLESS STEEL OVERLOAD DRUM
Next Page:GEGS OCTAGONAL STAINLESS STEEL MILLING DRUM
    
Global Privacy Policy | COMPANY | Site Map | Technical Support | E-mail | Contact us
COPYRIGHT © 2014 WUXI XINDA LIGHT INDUSTRIAL MACHINERY CO.,LTD ALL RIGHTS RESERVED.   
Address:No.1Rongsheng Road,Furong Industrial Park Section B,Xishan Development Zone,Wuxi City,Jiangsu Province,China
Zip Code:214192 Tel:+86-0510-83781551 / 83789998 Fax:0510-83781551
Http://www.xinda-chn.com E-mail:sales@xinda-chn.com

Su ICP record in ......